Продається будинок Київська, Києво-Святошинський, Білогородка (№ 22-386-843)
Ціна: 65 000 $

Характеристики
Ціна: | 65 000 $ |
---|---|
№ об'єкта: | 22-386-843 |
Тип: | таунхаус |
Поверхів: | 2 |
Площа будинку: | 60 м2 |
Ділянка: | 1 сот |
Адреса: Київська, Києво-Святошинський, Білогородка
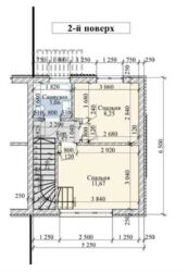
Продається таунхаус 60 м2 з ремонтом в с. Білогородка, Київська обл. Про таунхаус: - Площа: 60 м2 - Ділянка: 1,5 сотки. Планування: -1 поверх: простора кухня-вітальня площею 22 м2 з виходом на власний двір та гостьовий санвузол. - 2 поверх: санвузол та 2 кімнати. Комунікації: - електроенергія (10 кВт) - вода (свердловина) - каналізація (септик).