Продається будинок Київська, Києво-Святошинський, Петропавлівська Борщагівка  (№ 22-389-901)

Ціна: 74 000 $

Продається будинок Київська, Києво-Святошинський, Петропавлівська Борщагівка фото 1

Характеристики

Ціна: 74 000 $
№ об'єкта: 22-389-901
Поверхів: 2
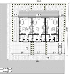
Площа будинку: 105 м2
Ділянка: 2 сот
єОселя: 7

Адреса: Київська, Києво-Святошинський, Петропавлівська Борщагівка

Продається ТАУНХАУС біля ЛІЦЕЮ №1. Площа - 105 м2 Ділянка - 2 сотки. Особливості: - електроенергія - 3 фази 10кВт - скважина - 40м - каналізація септик - 6 кубів - окремі заїзди Планування: - 3 спальні кімнати ( одна з гардеробною) - 2 санвузли - котельня. Середній таунхаус 74 000, бокові - 85000 $.

Об'єкт на карті