Продається квартира Київ, Святошинський, Булгакова, 12 (№ 213-021-286)

Ціна: 67 000 $
Характеристики
Ціна: | 67 000 $ |
---|---|
№ об'єкта: | 213-021-286 |
Кімнат: | 1 |
Поверх: | 3 / 4 |
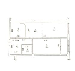
Площа: | 55 / - / 8 м2 |
Адреса: Київ, Святошинський, Булгакова, 12
Продаж 2-кімнатної квартири Булгакова 12.
Продаж двокімнатної квартири по вулиці Булгакова, 12. Квартира знаходиться на третьому поверсі п’ятиповерхового будинку. Має загальну площу 55 м?, житлову 26 м?. Складається з кімнати, кухні-вітальні, ванної кімнати, коридору, балкону. У ванній кімнаті сучасна сантехніка, установлений бойлер для постійного гарячого водопостачання. Квартира продається з мінімальною кількістю меблів, що дозволить Вам створити власний дизайн та інтерєр. В будинку індивідуальне електричне опалення. Квартира обігрівається за рахунок керамічних панелей та теплої підлоги в санвузлі. В квартирі зроблений ремонт 2023 р., ніхто не проживав. В дворі є місця для паркування автомобілів. Зручне розташування квартири дозволить легко дістатися до будь-якої точки міста. У районі є все необхідне для комфортного життя, включаючи магазини, кафе, ресторани та супермаркети. Поруч зупинка міського транспорту, швидкісний трамвай, до метро Шулявська, Вокзальна - 20 хвилин. Ціна 67000$,
Вид обєкта: Вторинний ринок;
Тип будинку: Житловий фонд 2011-2020-і;
Тип стін: Монолітний;
Планування: Роздільна;
Cанвузол: Суміжний;
Опалення: Індивідуальне електро;
Ремонт: Євроремонт;
Меблювання: Так;
Побутова техніка: Варильна панель, Плита;
Комунікації: Вивіз відходів, Центральна каналізація, Центральний водопровід, Електрика, Асфальтована дорога;