Продається квартира Київ, Святошинський, Берковецька, 6а, м. Академмістечко (№ 213-049-877)

Ціна: 67 999 $
Характеристики
Ціна: | 67 999 $ |
---|---|
№ об'єкта: | 213-049-877 |
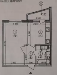
Кімнат: | 1 розд |
Поверх: | 2 / 14 ліфт |
Площа: | 37 / - / 8 м2 |
Санвузол: | 1 сумісний |
Балкон: | балкон |
Адреса: Київ, Святошинський, Берковецька, 6а, м. Академмістечко
Продажа 1 комнатной квартиры. Є оселя, Є відновлення продаётся! В живую смотриться очень дорого, ярко и красиво. Новый дом, свежий ремонт! После поднятия военного сбора с 1.5 до 5% цена будет дороже. Квартира свободна никто не живет! Документы все на руках, быстрая сделка! Продаётся со всем в квартире мебель, техника всё в комплекте, заходи и живи сразу! В живую квартира смотрится гораздо лучше чем на фото! Полноценная правильной планировки 1 комнатная квартира, новострой всё новое приятно зайти в парадное, охраняемая територия. Парковка перед домом всегда есть места, 2й этаж удобно спускаться и подыматься пешком. 2 лифта грузовых. Кровать ортопидическая большая широкая 2х спальная в пленке ещё. Фото соотвествуют на 100%. Квартира полностью обставлена всем: встроенная техника поверхность, духовка электро печет супер, вытяжка, холодильник 2х камерный с ноуфрост, кондиционер расчитан на всю квартиру на охлаждение и обогревом, телевизор плазма, шкаф встроенный, писменный стол встроенный метровый как отдельная рабочая зона так же можно поработать на кухне или балконе выведены розетки, свет, стиральная машинка, сушка для белья, бойлер, посудомойка, свет с зональностью затемнения и рабочих зон, термопленка на окнах, большой балкон затонирован пескоструем снизу, можно спокойно посидеть попить кофе. Двери с двумя замками. Потолки везде натяжные белый жемчуг мат , светильники все лед для экономии. Шторы на окнах рулонные никакой савдепии и тряпок на окнах. Точный адрес улица Берковецкая 6а, ЖК Ла Ла Ленд или Лаки Ленд, все комунальные законные по низкому тарифу, сразу рядом возле самого большого ТРЦ Лавина Мол, Ашан, Епицентр, Макдональдс, Новая почта, аптеки, магазины, кинотеатр, развлекательный комплекс и т.д. всё рядом (пешком 2минуты), школа, садик, маршрутки развязка всё рядом, метро 10м маршруткой до Академгородка, Житомирской и т.д, до Оболони и Виноградаря рукой подать, выезд на Житомирскую трассу, Пущеводица (парки, озера). От ТРЦ на прямую идут бесплатные маршрутки в разные направления. В доме есть генератор для экстремальных ситуаций а так же бомбоубежище. Район в действительности Святошенский граничит с Подольским.